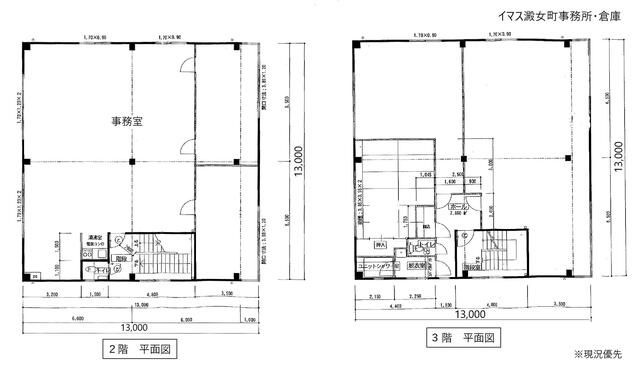
イマス澱女町(よどめちょう)事務所・倉庫

74.8万円 (0.59万円/坪) 管理/共益費 -

京都府京都市伏見区下鳥羽澱女町108

京阪本線「中書島」駅徒歩27分

京阪本線「伏見桃山」駅徒歩25分

近鉄京都線「桃山御陵前」駅徒歩26分

価格
74.8万円(0.59万円/坪) 管理/共益費 -
面積
126.65坪(418.70㎡)
所在地
京都府京都市伏見区下鳥羽澱女町108
築年
1999年9月(築26年)
駐車
有(1台)
交通

京阪本線中書島」駅 徒歩27分

京阪本線伏見桃山」駅 徒歩25分

近鉄京都線桃山御陵前」駅 徒歩26分

イマス澱女町(よどめちょう)事務所・倉庫の基本情報

物件名
イマス澱女町(よどめちょう)事務所・倉庫
価格
74.8万円(0.59万円/坪)
管理/共益費
-
築年月
1999年9月(築26年)
所在地
京都府京都市伏見区下鳥羽澱女町108
交通

京阪本線中書島」駅 徒歩27分

京阪本線伏見桃山」駅 徒歩25分

近鉄京都線桃山御陵前」駅 徒歩26分

イマス澱女町(よどめちょう)事務所・倉庫の詳細情報

設備条件
  • ロードサイド
  • 路面店
駐車場/月額
有(1台)/0円
取引態様
仲介
備考
1棟貸しの倉庫付事務所の募集が始まりました。新規開業、第二支店の営業所や研修ビルにいかがでしょうか?事業用物件(工場・倉庫・店舗・事務所)をお探しの際には、当社Me:RISE(ミライズ)までご連絡下さい。

イマス澱女町(よどめちょう)事務所・倉庫のコメント(おすすめポイント)

1棟貸しの倉庫付事務所の募集が始まりました。新規開業、第二支店の営業所や研修ビルにいかがでしょうか?事業用物件(工場・倉庫・店舗・事務所)をお探しの際には、当社Me:RISE(ミライズ)までご連絡下さい。

イマス澱女町(よどめちょう)事務所・倉庫で募集中の物件

  1. 126.65坪 (418.70㎡)

    74.8万円(5906.04円/坪)

イマス澱女町(よどめちょう)事務所・倉庫

お気軽にお問い合わせください

LINEからお問い合わせ 無料お問い合わせ

Me:RISE城東店

06-4400-6971

10:00~18:00

(休:日・水曜)